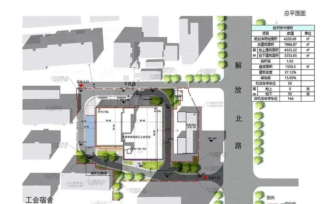
太原杏花岭要在银河苑北侧盖一座四层工人文化宫,占地八千平,消息一出,附近老居民群里直接炸锅。 这片过去就是块闲置空地,跳广场舞都得抢地盘,现在说要变剧场、阅览室、培训教室一条龙,财政加工会出钱,图纸都挂网公示两回了,就等二季度招标。 我看报道说方案里还留了无障碍通道和绿色节能,连屋顶都想装太阳能板,真建成,冬天跳秧歌不怕吹西北风,夏天看电影不用挤商场冷气。 最香的是以后职工夜校、老年合唱团、娃的书法班全塞得进去,一站式遛弯打卡,省得骑车满城跑。 现在就盼别像隔壁那条路,挖了填填了挖,招标顺利,年内把机器开进来,别让大爷大妈的期待又拖成下一个“明年见” 文化宫听起来高大上,其实就是给普通人找个能唱歌、能看书、能蹭空调的地方,盖好就是家门口的幸福。


