我们经常在施工现场,我们经常听到一句话,要严格按图施工。
那么这句话出自哪里呢?且看《中华人民共和国建筑法》第五十八条:
“建筑施工企业必须按照工程设计图纸和施工技术标准施工,不得偷工减料。工程设计的修改由原设计单位负责,建筑施工企业不得擅自修改工程设计。”
毫无疑问法律的初衷是好的,但如果设计施工分离,按图施工就可能因为设计、施工人员不够专业或者沟通不到位变成字面意义上的“按图施工”。

也是辛苦师傅了,为了完美还原图纸上的效果,特意在平地上修了个水泥槽。不过,有没有一种可能这只是用来标注门的位置?

乍一看这个楼梯还挺有个性的,仔细一看让人眼前一黑。到底是什么样的企业级理解能把标注直接刻在楼梯上啊?甚至为了完美地画出这个圆,还煞费苦心地衡量好了三个台阶之间的距离。同样逆天的还有这个井盖:技术确实一流,就是努力错了方向。

施工过程中沟通是必要的,大部分的施工企业都是专业且合格的,但如果不慎遇到特殊情况,沟通又不到位,就可能出现以上乌龙。施工中容易踩雷的还有一种东西——云形线。云形线即修订云线,是由连续圆弧组成的多段线,用于在检查阶段提醒用户注意图形的某个部分,相当于图纸上的注释或批注。但如果对其不太了解,就会产生下面的情况:

看起来还挺有艺术感的,但原本应该封住的楼板出现一个大洞,后续的漏水、漏灰问题都让人头疼。

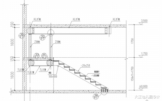
同样的问题出现在这个例子里,如果不是看到施工图,我可能还以为这是专门留出来安装灯具的地方。有些楼梯修出来就不是给人走的,而是用来筛选“武林高手”的。施工图长这样:

楼梯长这样:

还有这个楼梯,修得很好,下次别修了。上面的楼梯还只是让人上不去,而这个楼梯是让人不敢上也不敢下。


施工师傅说没看到立柱,也没看到支撑点,严格按照图纸施工,确实没毛病。施工图上常常用虚线来标准门的方向或者标准门洞的位置。但有些时候设计方也会因为画图画的太细致而受到制裁。


你看,这门上的虚线是不是一模一样?真“按图施工”。有时候现场出状况,可能需要设计师临时画一个草稿图,而这更是重灾区。这个地漏,它愧对地漏之名。如此“高高在上”大概只有水管爆裂,发大水的时候能用到吧。


为了避免上述乌龙事件出现,我们为选择用EPC模式为幼儿园提供专业的一站式服务。无论是设计、施工、还是材料都由我们严格把关,让园方能够省心、安心、放心。我们一直认为好口碑才是企业健康发展的正确道路,未来我们将继续沿着这条路前行,争取获得更多认可。图片来源:网络,建筑one,土木论坛等版权属于原作者,如有问题请联系小编删除