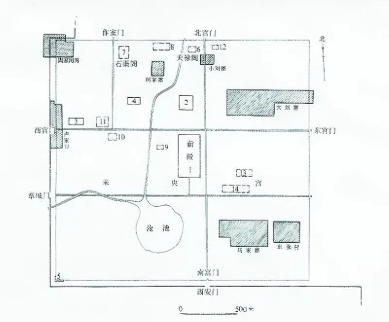
西汉未央宫,这座古老的宫殿见证了汉朝历史的沧桑。一支考古团队对其进行了一次全面的考古挖掘,竟然在皇后和皇太后寝宫的地底下发现了一条长约25米的密道。这条密道的用途引起了人们的极大兴趣,各种猜测层出不穷。 据历史记载,汉高祖刘邦在建立汉朝后,为了加强自己的统治,积极削弱各地诸侯王的势力。在这个过程中,他不仅依靠外戚的力量,还积极联合江湖豪杰,共同维护汉朝的统一。因此,有人猜测这条密道是为了方便后宫嫔妃偷情而建造的,这种说法显然缺乏足够的证据和可信度。 另外,也有人认为这条密道是为了躲避火灾而建造的。然而,这种猜测也经不起推敲。如果只是为了防火,完全没有必要建造一条长达25米的密道。此外,在古代建筑中,防火是一项很重要的工程,皇宫的建筑更是注重防火措施,因此这条密道显然不是用于防火的。 经过考古学家的深入研究,他们认为这条密道应该是汉高祖刘邦为了方便外戚进宫商议政事而建造的。在汉朝时期,外戚干政是一种普遍的政治现象,而这条密道正好位于皇后和皇太后寝宫下方,这两个地方是外戚经常出入的地方,因此这条密道很可能是为了方便外戚进出皇宫商议政事而建造的。 这条密道的真正用途可能还有其他的解释,但根据考古学家的研究,建造这条密道的目的应该是为了方便外戚进出皇宫商议政事。这也为我们了解西汉未央宫的历史提供了新的视角和线索。




高碳钢T10
没错 也就是汉代始 统治者才真正的注重国家舆论!因为汉代皇帝职权开始完善 皇帝只忌惮历史记载评论 就是社会和国家舆论 有些事可以做,但不能大张旗鼓的做
jane 回复 09-05 07:21
现在谁还在乎以后史书怎么写,怎么快乐怎么过
高碳钢T10 回复 jane 09-05 21:02
不在其位而已 坐上那位置 心态就不同了!兜里有十万逛商场 跟兜比脸干净 两者心态能一样?
安然
这样皇帝不成绿帽王👑了
在下叮当猫 回复 09-18 09:24
中山靖王刘胜的谱系跟其他都不一样
dtstoo 回复 09-05 10:02
老刘不在乎的,吕后跟她情人的关系几乎是半公开的!
红包散
25米有什么用?未央宫只有几百平?