世良情感网
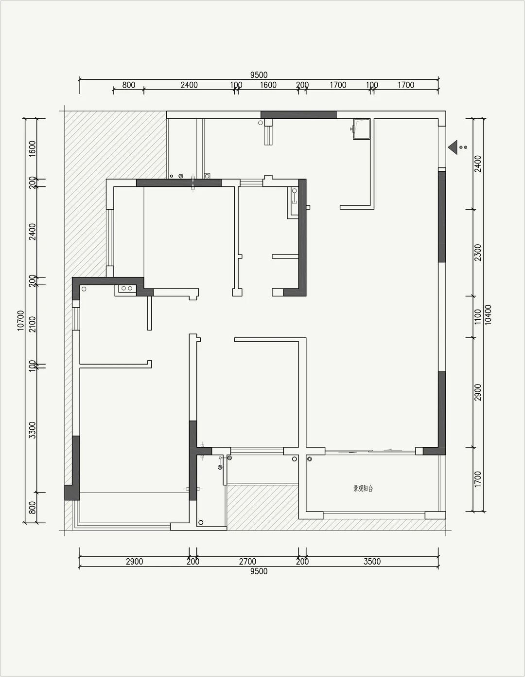
88㎡经典户型改造|厨房4版改造方案
设计师人厘米酱
2025-12-02 00:16:11
小户型照搬不踩雷
0
阅读:0
设计师人厘米酱
感谢大家的关注
作者最新文章
1
78㎡三居爆改两居!次卧改衣帽间+梦中情厨!
2
无玄关户型的救命稻草!0.5㎡造出独立玄关!👠
3
不要沙发电视!我家客厅会成长🌱
4
去客厅化改造|我家真香了!
5
砸墙做开合厨房+岛台!三居真香了!
6
🔥爆改三居!通透厨房+岛台C位+亲子客厅
7
86㎡三房神操作!两卫改三分离,早高峰解放!
8
🔥79㎡三房爆改两房!四分离卫浴+梦中情厨水
9
🔥「88㎡三居爆改!主卧套房+双儿童房+岛台厨
10
户型改造|超大横厅|知识岛屿,重塑生活核心
热门分类
推荐
热榜
军事
NBA
体育
社会
明星八卦
娱乐
财经
科技
汽车
历史
国际
游戏
动漫
公益
搞笑
商业
互联网
数码
国际足球
房产
家居
时尚
科学探索
职场
育儿
股票
教育
影视
情感
热点
中国军情
武器
中国南海
中国足球
亚洲杯
科比
综合体育
CBA
投资
大咖秀
外汇
创业
风口
SUV
豪车
概念车
优惠
新能源
美国
欧洲
朝日韩
俄罗斯
孕期
街拍
婚姻
正能量
家居
TOP
1
学校里的离谱装饰
2
这个房子的设计有点奇葩!不得不感叹真是一个敢设计,一个敢建。
3
装修简洁大气
4
师傅在厨房修水管,女主人站在一旁。
5
“白嫖成功了?”2017年,江苏一男子花了几十万装修开饭店,可是5年后生意正火时
6
农村自建房设计的天花板,真是太牛了啊![赞][赞][赞]
7
洗澡水温很高
8
舒适办公椅,坐一天也不累!
9
阳光明媚,晾衣阳台上,风景美如画。
10
这颜值在村里,应该是天花板了吧?
家居
最新文章
1
你说天底下哪有这么荒唐的事?主角叫白天辉,香港豪宅的衣柜夹层里,藏着三本账本,
2
最近网上有人发了贾冰家厨房的照片。照片里墙面掉皮、到处是油污,切肉切菜居然用一块
3
愿意替黄老汉坐马桶,简直是忠不可言啊!
4
师傅在厨房修水管,女主人站在一旁。
5
我家的装修师傅个个是人才👍大家装门一定一定要在刮完第一遍腻子之后,千万别信什
6
一位业主2009年买的毛坯房,到现在还是水泥墙,没住一天,却年年被催交1500块
7
总有一张是你的风格
8
乡镇盖这么高的楼,主要是吸引谁去入住!
9
一层一层的跌,以为是跌到地板了,地板还有地窖,地窖下还有地狱,地狱还是18层地狱
10
这样一弄,小区里很多新装修的业主都和我学了[捂脸哭]