世良情感网
好大的大平层呀!可以在里面跑操了/老k杯
设计师人厘米酱
2025-12-05 00:04:25
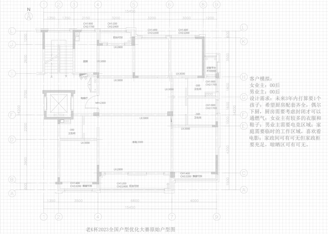
设计需求: 00后夫妻 1、未来三年内打算要一个小孩 2、希望厨房配套齐全,偶尔下厨,厨房需要考虑封闭,开通煤气需要 3、女业主衣服鞋子多 4、男业主要电竞房 5、家庭需要临时办公,喜欢看电影 6、家政间可有可无,但家政柜要充足,晾晒可有可无
0
阅读:0
设计师人厘米酱
感谢大家的关注
作者最新文章
1
170㎡四居室住八口人!够住吗?不够!
2
经典三居室户型改造优化分享—5版方案
3
经典户型看腻了!一次做八版方案!
4
户型优化|48期-70 ㎡三居室变二居室-3版方案
5
户型改造|47期-67 ㎡小三居室就这么改造吧
6
户型改造|46期-98 ㎡经典四叶草户型-
7
户型优化|45期-没有入户?造一个!-3版方案
8
户型改造|44期-这个大平层怎么都看不够!
9
户型改造|43期-57 ㎡三居室-够住吗?
10
假如我有一个院子,我就要这样改造!
热门分类
推荐
热榜
军事
NBA
体育
社会
明星八卦
娱乐
财经
科技
汽车
历史
国际
游戏
动漫
公益
搞笑
商业
互联网
数码
国际足球
房产
家居
时尚
科学探索
职场
育儿
股票
教育
影视
情感
热点
中国军情
武器
中国南海
中国足球
亚洲杯
科比
综合体育
CBA
投资
大咖秀
外汇
创业
风口
SUV
豪车
概念车
优惠
新能源
美国
欧洲
朝日韩
俄罗斯
孕期
街拍
婚姻
正能量
家居
TOP
1
学校里的离谱装饰
2
这个房子的设计有点奇葩!不得不感叹真是一个敢设计,一个敢建。
3
装修简洁大气
4
师傅在厨房修水管,女主人站在一旁。
5
农村自建房设计的天花板,真是太牛了啊![赞][赞][赞]
6
舒适办公椅,坐一天也不累!
7
阳光明媚,晾衣阳台上,风景美如画。
8
这颜值在村里,应该是天花板了吧?
9
这算不算是砌墙的天花板。
10
浙江温州一男子装修房子,找来砸墙师傅,一问需要2600元,男子为省下2600元砸
家居
最新文章
1
厨房的晨时轻暖晨光漫过厨房的台面,暖黄的灶火裹着食物的香气,轻绕在她的身侧
2
“解释不清了!”女子装修新房准备砸墙,没想到,主卧墙后竟然砸出一间完全封闭的密室
3
女子发视频称,12月13日报道,她在装修自己新房时,砸通主卧里的一面墙壁,竟意外
4
你说天底下哪有这么荒唐的事?主角叫白天辉,香港豪宅的衣柜夹层里,藏着三本账本,
5
最近网上有人发了贾冰家厨房的照片。照片里墙面掉皮、到处是油污,切肉切菜居然用一块
6
谁懂啊!现在年轻人阳台都不装传统窗帘了!洗窗帘要爬梯子拆挂钩,两小时累到腰酸;三
7
工位唠嗑吃瓜局楼梯间摸鱼
8
愿意替黄老汉坐马桶,简直是忠不可言啊!
9
师傅在厨房修水管,女主人站在一旁。
10
我家的装修师傅个个是人才👍大家装门一定一定要在刮完第一遍腻子之后,千万别信什