世良情感网
户型优化27期|建议回迁房改造都按这个来
设计师人厘米酱
2025-12-05 01:03:00
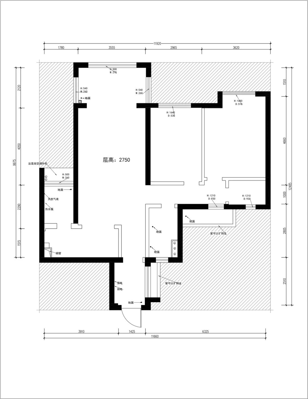
二居室改三居室,只有一个卫生间!卫生间三分离很重要! 设计需求: 1、回迁房(户型没得挑) 2、四口之家 3、需要三个卧室(两个儿童房) 4、卫生间太小(需要解决,最好洗手盆在外面) 5、厨房餐厅不合理,厨房扩大 6、阳台可以封窗户
0
阅读:0
设计师人厘米酱
感谢大家的关注
作者最新文章
1
96㎡经典户型改造|去客厅化设计
2
80㎡经典户型改造|想要一个衣帽间
3
114㎡经典户型改造|想要加一个浴缸🛀
4
78 ㎡经典户型改造|也想要大卧室
5
114㎡经典户型改造|想要浴缸🛁
6
88㎡经典户型改造|厨房4版改造方案
7
86 ㎡经典改造,少个卫生间,要一个衣帽间
8
85㎡经典户型改造,我家可以做斜切吗?
9
87㎡经典户型改造,想看三分离!
10
82㎡三房一卫经典户型改造方案
热门分类
推荐
热榜
军事
NBA
体育
社会
明星八卦
娱乐
财经
科技
汽车
历史
国际
游戏
动漫
公益
搞笑
商业
互联网
数码
国际足球
房产
家居
时尚
科学探索
职场
育儿
股票
教育
影视
情感
热点
中国军情
武器
中国南海
中国足球
亚洲杯
科比
综合体育
CBA
投资
大咖秀
外汇
创业
风口
SUV
豪车
概念车
优惠
新能源
美国
欧洲
朝日韩
俄罗斯
孕期
街拍
婚姻
正能量
家居
TOP
1
学校里的离谱装饰
2
这个房子的设计有点奇葩!不得不感叹真是一个敢设计,一个敢建。
3
装修简洁大气
4
师傅在厨房修水管,女主人站在一旁。
5
农村自建房设计的天花板,真是太牛了啊![赞][赞][赞]
6
舒适办公椅,坐一天也不累!
7
阳光明媚,晾衣阳台上,风景美如画。
8
这颜值在村里,应该是天花板了吧?
9
这算不算是砌墙的天花板。
10
浙江温州一男子装修房子,找来砸墙师傅,一问需要2600元,男子为省下2600元砸
家居
最新文章
1
我的小公寓,一直租给一个年轻姑娘,月租1800,她住两年一直挺省心,昨天突然找我
2
优雅气质,绿意盎然,古典与现代的完美融合。
3
拍大腿,本来想翘板这个的,地天板了
4
16岁烤鸡少年睡地板也要当老板目标迈巴赫!刷到深圳烤鸡少年的故事,直接转
5
男人是不是都这样?还是只有我老公这样?我老公有个习惯越来越严重,有事没事都要看到
6
厨房的晨时轻暖晨光漫过厨房的台面,暖黄的灶火裹着食物的香气,轻绕在她的身侧
7
“解释不清了!”女子装修新房准备砸墙,没想到,主卧墙后竟然砸出一间完全封闭的密室
8
女子发视频称,12月13日报道,她在装修自己新房时,砸通主卧里的一面墙壁,竟意外
9
你说天底下哪有这么荒唐的事?主角叫白天辉,香港豪宅的衣柜夹层里,藏着三本账本,
10
最近网上有人发了贾冰家厨房的照片。照片里墙面掉皮、到处是油污,切肉切菜居然用一块